Vendita
L'Appartamento di rappresentanza
MILANO (MI)
- ZONA Arco della Pace
Tratt. riservata
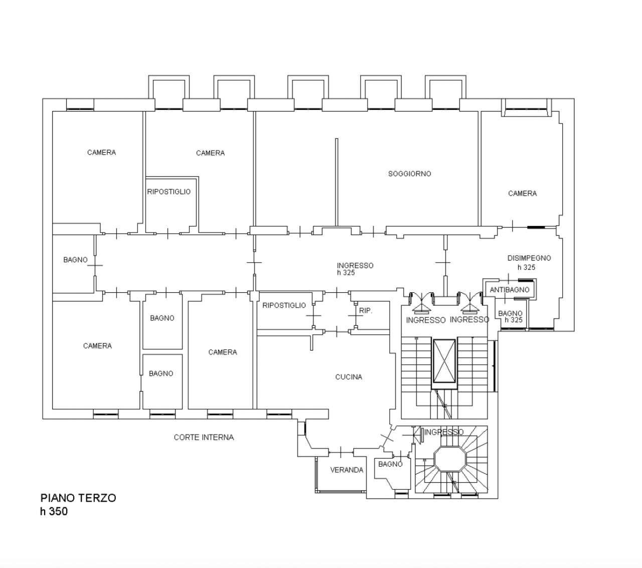
Abbondio San Giorgio VINCENZO MONTI PRESTIGE® 02.43980296 Tel 347.4013254 vedi tutte le ns. proposte sul sito vincenzomontiprestige(.it) - attaccato al Parco Bompiani Vergani (Parco Pallavicino) e non lontano dall'Arco della Pace, proponiamo con incarico in esclusiva il vero appartamento di rappresentanza, posto all'ultimo piano (intero piano) di Stabile d'epoca, con sale d'ingresso e corridoi (come si dovrebbero avere ndr) in pregiato seminato veneziano Fantini. Internamente crediamo sia uno dei migliori tagli in pianta avuti da vendere. Epoca, ultimo piano, spazi di rappresentanza, piantina tagliata bene, ottima esposizione, box di proprietà nello stabile. Sul mercato non ci sono mai disponibili proposte simili. Internamento composto da salone, pranzo, grande cucina abitabile, CINQUE camere da letto, quattro bagni, lavanderia, ripostigli, balconcini d'affaccio, cantina e box ampio ed alto 3,40 mt anche per meccanismo per due autovetture. Zona giorno tutta affacciata a Sud. Soffitti alti ben 3,50 mt. Indiscutibilmente tra i piu' belli della zona. Trattative riservate. Le ns schede sui vari motori di ricerca sono caricate con un applicativo generico, pertanto taluni elementi descrittivi potrebbero in alcuni casi differire da quanto effettivo. Invitiamo, pertanto, a verificare le caratteristiche dell'immobile, soggetto cmq a variazioni e modifiche descrittive, precisazioni e correzioni. Pertanto le stesse, contenuto e piantine non potranno avere valore contrattuale.
VINCENZO MONTI Energy Division. MILAN AGENCY • Vincenzo Monti Prestige Srl • Via Vincenzo Monti 26 • 20123 Milano • Tel. +39.02.463972 • monti@vincenzomontiprestige.it • vincenzomontiprestige.com - Specializzati da oltre 25 anni nel Quadrilatero, C.so Magenta, Vincenzo Monti, curiamo i Vostri appartamenti con la massima attenzione che meritano. Selezioniamo immobili in vendita e locazione per i nostri gentili Clienti. Vincitori premio Capital "Best 2016 - Successi Emergenti" (Classeditori). Think Prestige!
VINCENZO MONTI PRESTIGE® International Real Estate. Specializzati nei downtown di Venezia, New York, Miami, Londra e Parigi. Da 25 anni con passione!
MILANO Vincenzo Monti 26 • VENEZIA San Polo 2598 • NEW YORK 300 Kent Brooklyn • MIAMI South Beach 1000 5th Street • LONDON 28 Charing Cross • PARIS 100 Quai de la Rapée
VINCENZO MONTI Energy Division. MILAN AGENCY • Vincenzo Monti Prestige Srl • Via Vincenzo Monti 26 • 20123 Milano • Tel. +39.02.463972 • monti@vincenzomontiprestige.it • vincenzomontiprestige.com - Specializzati da oltre 25 anni nel Quadrilatero, C.so Magenta, Vincenzo Monti, curiamo i Vostri appartamenti con la massima attenzione che meritano. Selezioniamo immobili in vendita e locazione per i nostri gentili Clienti. Vincitori premio Capital "Best 2016 - Successi Emergenti" (Classeditori). Think Prestige!
VINCENZO MONTI PRESTIGE® International Real Estate. Specializzati nei downtown di Venezia, New York, Miami, Londra e Parigi. Da 25 anni con passione!
MILANO Vincenzo Monti 26 • VENEZIA San Polo 2598 • NEW YORK 300 Kent Brooklyn • MIAMI South Beach 1000 5th Street • LONDON 28 Charing Cross • PARIS 100 Quai de la Rapée
Contratto Vendita
Rif L'Appartamento di rappresentanza
Prezzo Tratt. riservata
Provincia Milano
Comune Milano
Zona Arco della Pace
Indirizzo Via Abbondio San Giorgio">
Vani 7
Camere 5
Bagni 4
Classe energetica
E (DL 90/2013)
EPgl,nren 175 kwh/m2 anno
Piano 4 / 4
Riscaldamento centralizzato
Condizioni ottime condizioni
Spese condominiali € 900
Anno di costruzione 1900
Ascensore si
Cucina abitabile
Consistenze
| Descrizione | Superficie | Sup. comm. |
|---|---|---|
| Principali | ||
| Immobile - 4° piano | 320 Mq | 320 Mqc |
| Totale | 320 Mqc | |




















Zoom della mappa
Apri con:
Apple Maps
Google Maps
Waze
Apri la mappa






